
Phối cảnh theo mẫu có sẵn trên website
Mặt bằng vật dụng các tầng, mặt cắt, mặt đứng kích thước
Không sửa phối cảnh mẫu, hỗ trợ 2 lần chỉnh sửa mặt bằng theo yêu cầu Khách hàng
Bản vẽ khổ A4, gởi bản vẽ in gồm phối cảnh và các bản vẽ liên quan, hoặc gởi email file thiết kế mặt bằng, mặt cắt và mặt đứng định dạng PDF, file acad, file ảnh...
Liên hệ : 0943.973.3251. Loại mẫu nhà: Biệt thự 2.5 tầng có tầng hầm
2. Số mặt tiền:02
3. Phong cách kiến trúc: Biệt thự 2.5 tầng có tầng hầm.
4. Quy mô: 2.5 tầng
-Số tầng: 2.5
-Diện tích:265 m2 ( 1 sàn)
5. Chiều dài mặt tiền: 17.4
6. Chiều dài nhà: 13.5
7. SÔ PHÒNG CHỨC NĂNG
- Số phòng ngủ: 07
- Số phòng vệ sinh: 05
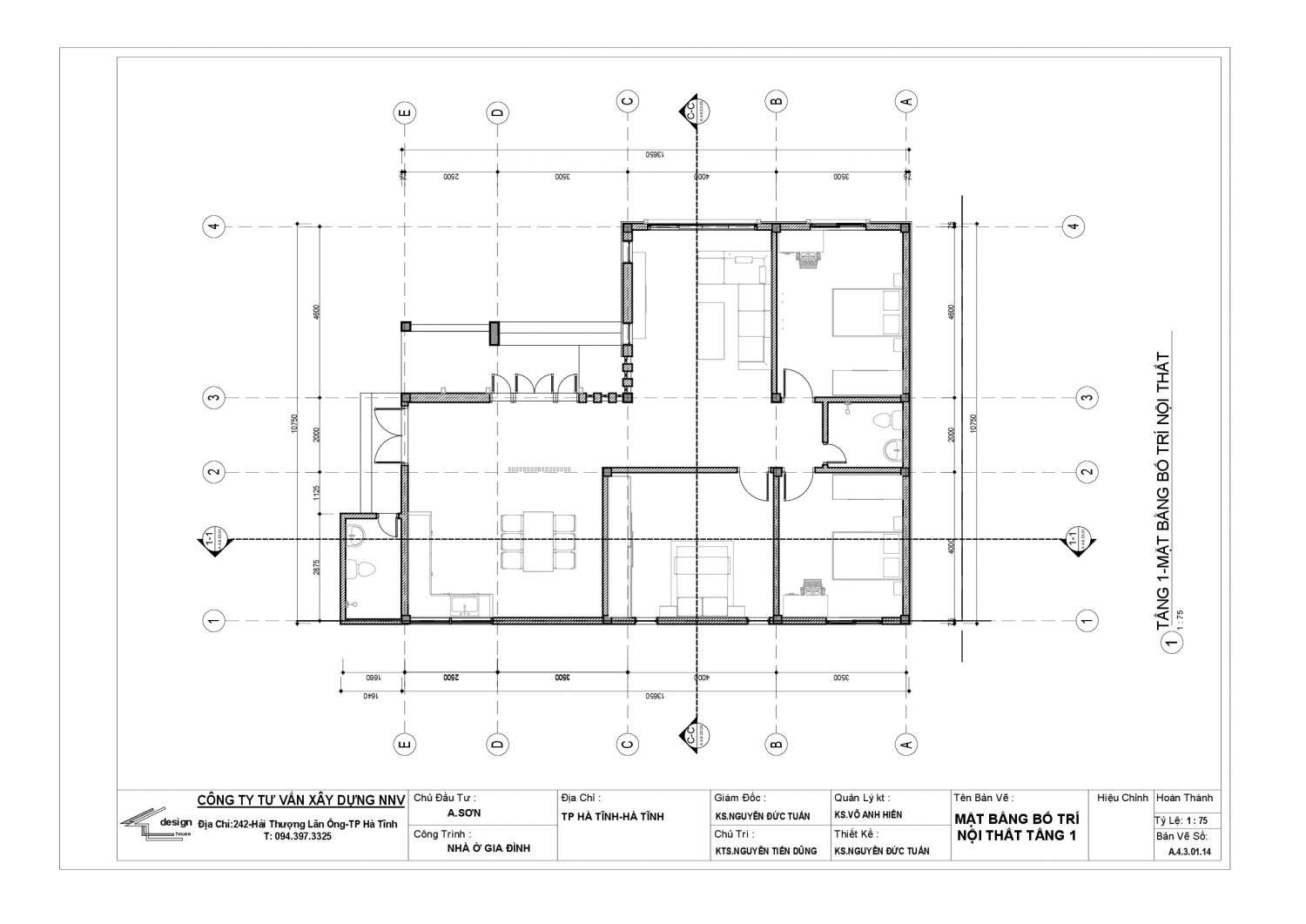
Mặt bằng mẫu mang tính chất tham khảo nhu cầu về nhà ở của Khách hàng, chúng tôi hỗ trợ chỉnh sửa mặt bằng cho phù hợp với phối cảnh và nhu cầu thực tế của Khách hàng khi mua hàng
Mặt bằng mẫu mang tính chất tham khảo nhu cầu về nhà ở của Khách hàng, chúng tôi hỗ trợ chỉnh sửa mặt bằng cho phù hợp với phối cảnh và nhu cầu thực tế của Khách hàng khi mua hàng
Mặt bằng mẫu mang tính chất tham khảo nhu cầu về nhà ở của Khách hàng, chúng tôi hỗ trợ chỉnh sửa mặt bằng cho phù hợp với phối cảnh và nhu cầu thực tế của Khách hàng khi mua hàng
Mặt bằng mẫu mang tính chất tham khảo nhu cầu về nhà ở của Khách hàng, chúng tôi hỗ trợ chỉnh sửa mặt bằng cho phù hợp với phối cảnh và nhu cầu thực tế của Khách hàng khi mua hàng
Mặt bằng mẫu mang tính chất tham khảo nhu cầu về nhà ở của Khách hàng, chúng tôi hỗ trợ chỉnh sửa mặt bằng cho phù hợp với phối cảnh và nhu cầu thực tế của Khách hàng khi mua hàng
Mặt bằng mẫu mang tính chất tham khảo nhu cầu về nhà ở của Khách hàng, chúng tôi hỗ trợ chỉnh sửa mặt bằng cho phù hợp với phối cảnh và nhu cầu thực tế của Khách hàng khi mua hàng
Mặt bằng mẫu mang tính chất tham khảo nhu cầu về nhà ở của Khách hàng, chúng tôi hỗ trợ chỉnh sửa mặt bằng cho phù hợp với phối cảnh và nhu cầu thực tế của Khách hàng khi mua hàng
Mặt bằng mẫu mang tính chất tham khảo nhu cầu về nhà ở của Khách hàng, chúng tôi hỗ trợ chỉnh sửa mặt bằng cho phù hợp với phối cảnh và nhu cầu thực tế của Khách hàng khi mua hàng